专注起重机制造18年
起重机械生产制造商
400-1133-186
13802872058
首页
按起重机品种分类
双梁起重机
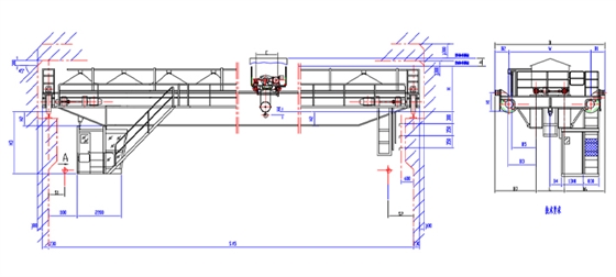
产品简介
产品特点: 双梁桥式起重机配置吊钩适用于机械加工、装配车间、金属结构车间、冶金与铸造车间以及各类仓库的吊运工作;配置抓斗适用于冶金、水泥、化工等工业部门室内或露天的固定跨度从事散粒物料的搬运工作。 配置吊钩适用于机械加工、装配车间、金属结构车间、冶金与铸造 车间以及各类仓库的吊运工作;配置抓斗适用于冶金、水泥、化工等工业 部门或露天的固定跨度从事散粒物料的搬运工作。
产品详情
产品特性
双梁桥式起重机配置吊钩适用于机械加工、装配车间、金属结构车间、冶金与铸造车间以及各类仓库的吊运工作;配置抓斗适用于冶金、水泥、化工等工业部门室内或露天的固定跨度从事散粒物料的搬运工作。
配置吊钩适用于机械加工、装配车间、金属结构车间、冶金与铸造 车间以及各类仓库的吊运工作;配置抓斗适用于冶金、水泥、化工等工业 部门或露天的固定跨度从事散粒物料的搬运工作。
产品参数
上一页
余下全文
1
/5
下一页
分享到:
我要下单
姓名
手机
留言
请输入留言
热点推荐
双梁起重机
门式起重机
电动单梁起重机
LDB欧式单梁起重机
龙门架
网友热评
还可以输入140个字